Продам 2-этажный кирпичный коттедж |
||||
| Объявление № 5119676 | ||||
|
|
||||||||||||||||||||||
![]() |
||||||||||||||||||||||
| Есть пластиковые окна. |
| Есть центральные коммуникации: электричество. |
| Описание |
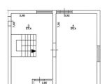
| Собственник. Продается индивидуальный жилой дом в д.Казанка. Деревня находится на берегу реки Томи, в 18 километрах от пл. Южной, трасса Томск – с. Яр. Рядом расположены с. Коларово, Синий утес, горнолыжный парк «Эдельвейс». Рядом детская площадка. Площадь земельного участка 9, 5 сот. Общая площадь дома = 117, 8 м2 (площадь 1-го этажа = 58, 7 м2; площадь 2-го этажа = 59, 1 м2); площадь балкона 8, 9 м2. На участке есть вишня, груша, яблоня, ранетка (по несколько деревьев). Дом без подвала, прямоугольный в плане, габаритными размерами 8, 74 х 9, 5 м, высота помещений 1-го этажа – 2, 75 м, высота помещений 2-го этажа – 2, 75 м. 1 этаж: тамбур, прихожая-холл, котельная, гостевой туалет, гостиная-столовая-кухня, лестница. 2 этаж:, 3 спальные комнаты, ванная. Связь между уровнями осуществляется по внутриквартирной лестнице (временная деревянная). Окна – пластиковые переплеты с двухкамерным стеклопакетом и ТОП-стеклом (теплоотражающее покрытие, отражает тепло в дом). Двери – металлопластиковые утепленные с повышенной тепло-звукоизоляцией (частично остеклены). Отделка помещений : черновая, можем сделать предчистовую и чистовую. Ограждение участка: забор. Водоснабжение: скважина. Канализация: септик. Внутренние сети водоснабжения и канализации: - Отопление: электрическое. Наружные сети электроснабжения: счетчик на уличном столбе. Внутренние сети электроснабжения: – Трейд-ин! Рассрочка без процентов! |
| Карта | |
|
|
| Условия | ||
|
|
|||||||||||
|
Поделиться

Вход








Опубликовано