Продам 2-комнатную квартиру

Объявление № 5137790    
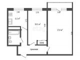
Квартира

Количество комнат  2
Общая площадь  43.4 кв.м
жилая  27.5 кв.м
кухня  6.1 кв.м
Этаж/этажность  1/5
Отделка  в хорошем состоянии
Санузел  совмещенный
Балкон/лоджия  балкон
в здании

Ивана Черных 109/2  (1)
Октябрьский район
Этажность  5
Год постройки  1972
Вид  вторичное
Описание


Продается двухкомнатная квартира на первом этаже пятиэтажного панельного дома. Общая площадь 43, 4 м включает просторную жилую зону (27, 5 м) и удобную кухню 6, 1 м. Квартира находится в хорошем состоянии после косметического ремонта: ровные потолки, свежие обои, замененная электропроводка с новыми розетками. Раздельные комнаты позволяют комфортно разместиться семье из 2-3 человек. Санузел отделан кафелем, сантехника частично заменена. Установлены теплые пластиковые окна с надежной герметизацией — отсутствуют сквозняки и промерзание, в квартире поддерживается комфортная температура зимой. Балкон застеклен и отделан евровагонкой. Окна выходят в сторону палисадника с зоной отдыха, что обеспечивает тишину и приватность. В подвале дома имеется кладовая для хранения вещей. В продажу включен шкаф-купе в комнате и прихожая, остальная мебель может быть передана по договоренности. Двор тихий, без сквозного проезда, с детской площадкой и парковочными местами. В непосредственной близости расположены детские сады и школа, что делает локацию удобной для семей с детьми. В шаговой доступности — торговые центры, остановки общественного транспорта с маршрутами во все районы города. Квартира подходит как для постоянного проживания, так и для инвестиции. Два взрослых собственника готовы к сделке. Данная квартира — оптимальный вариант для тех, кто ценит практичность и комфорт.
Код пользователя: 174351
Номер в базе: 8819741
Карта    

Уменьшить
Увеличить
Условия

4 600 000 руб.
  (105 990 руб. за м2).

Контактная информация

Контактное лицо: Кодинцева Ольга Николаевна

Телефон:

Компания ЭТАЖИ, агентство недвижимости

Объявление № 5137790     Статистика

Опубликовал: ries_etagi
Опубликовано: 30 ноября 2025
Истекает: 14 января 2026
Статус: Опубликовано Опубликовано
Поделиться