Продам 2-комнатную квартиру |
||||
| Объявление № 5169216 | ||||
|
|
||||||||||||||||||
|
||||||||||||||||||
| Описание |
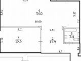
| В продаже современный вариант 2 комнатной студии в центре города.Дом кирпичный 2012 года постройки.Общая площадь без учета лоджии 70, 5 кв.м., была перепланирована из классической 2 комнатной планировки, все узаконено.Площадь кухни-гостиной -34 кв.м., спальня 15, 6 кв.м. , очень просторная прихожая.По договоренности можно обсудить продажу со всем что есть в квартире.Подробности по телефону, приходите смотреть ! |
Карта
Показать панораму | |
|
|
| Условия | ||
|
|
|||||||||||
|
Поделиться

Вход









Опубликовано